



$619,000
MLS #:
1606376
Beds:
3
Baths:
3
Sq. Ft.:
1674
Lot Size:
0.27 Acres
Garage:
2 Car Attached, Remote Opener, 2 Car Oversized Garage
Yr. Built:
2025
Type:
Single Family
Single Family - HOA-No, CC&R's-Yes, Under Construction, New Home
Tax/APN #:
802-18-062
Area:
Page
Subdivision:
Colt Springs Phase 2
Address:
420 Slavens Way
Page, AZ 86040
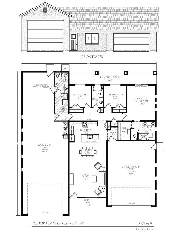
New Home Under Construction with RV Garage
LAKE POWELL'S NEWEST SUBDIVISION - WELCOME TO COLT SPRINGS PHASE 2 . Introducing an exciting new residential development located just minutes away from the waters of Lake Powell. This thoughtfully planned & affordable subdivision offers new high quality homes with 2X6 construction and modern finishes. With 3 Beds 3 Baths, this home is designed with comfort and functionality. The kitchen is open and inviting with ample cabinet space and flows seamlessly into the living area. Enjoy the convenience of the oversized garage inside measurement 21'x65' with a 14' garage door perfect for storage or keeping your boats/ RV's covered year round. Estimated completion is March 2026. Buyer to verify all. BUILDER/DEVELOPER AND BROKERS ARE ALL RELATED.
Interior Features:
Ceiling Fans
Cooling: Central Air
Cooling: Heat Pump
Cooling: Roof Unit
Flooring- Carpet
Flooring- Vinyl
Flooring-Tile
Heating: Heat Pump
Walk-in Closets
Wired for Cable
Exterior Features:
Construction: Stucco
Corner Lot
Curb & Gutter
Fenced- Partial
Foundation: Slab on Grade
Roof: Shingle
RV/Boat Parking
View of Mountains
Appliances:
Dishwasher
Garbage Disposal
Microwave
Oven/Range- Electric
Refrigerator
W/D Hookups
Other Features:
CC&R's-Yes
HOA-No
Legal Access: Yes
New Home
Style: 1 story above ground
Style: Rambler
Under Construction
Utilities:
Garbage Collection
Internet: Cable/DSL
Phone: Cell Service
Power Source: City/Municipal
Sewer: Hooked-up
Water Heater- Electric
Water Source: City/Municipal
Listing offered by:
Tonya Burton - License# BR701563000 with Burton Brokerage, LLC - (602) 319-8575.
Gracie Burton - License# BR103771000 with Burton Brokerage, LLC - (602) 319-8575.
Map of Location:
Data Source:
Listing data provided courtesy of: Page/Lake Powell MLS (Data last refreshed: 02/09/26 3:47pm)
- 92
Notice & Disclaimer: Information is provided exclusively for personal, non-commercial use, and may not be used for any purpose other than to identify prospective properties consumers may be interested in renting or purchasing. All information (including measurements) is provided as a courtesy estimate only and is not guaranteed to be accurate. Information should not be relied upon without independent verification.
Notice & Disclaimer: Information is provided exclusively for personal, non-commercial use, and may not be used for any purpose other than to identify prospective properties consumers may be interested in renting or purchasing. All information (including measurements) is provided as a courtesy estimate only and is not guaranteed to be accurate. Information should not be relied upon without independent verification.
More Information

Want more information?
I will be glad to help you with any of your real estate needs!
Feel free to send a text message or reach me at
(435) 819-9095
Feel free to send a text message or reach me at
(435) 819-9095
Mortgage Calculator
%
%
Down Payment: $
Mo. Payment: $
Calculations are estimated and do not include taxes and insurance. Contact your agent or mortgage lender for additional loan programs and options.
Send To Friend
